首页>新闻汇总>中国机场
哈尔滨机场新航站楼停车场25日启用
来源:中国民航网2016-11-24 14:27:00
  中国民航网 通讯员仇建、于海成 报道:为充分释放哈尔滨机场停车场用地资源,有效缓解运营压力,11月25日,哈尔滨机场扩建工程T2航站楼前新建停车场临时开放投入使用。同时,为方便旅客出行,哈尔滨机场对送客线路进行了调整,提前为春运高峰做好准备。

  据介绍,新建停车场位于新建T2航站楼前,面积约5万平方米,临时规划停车位1000个。

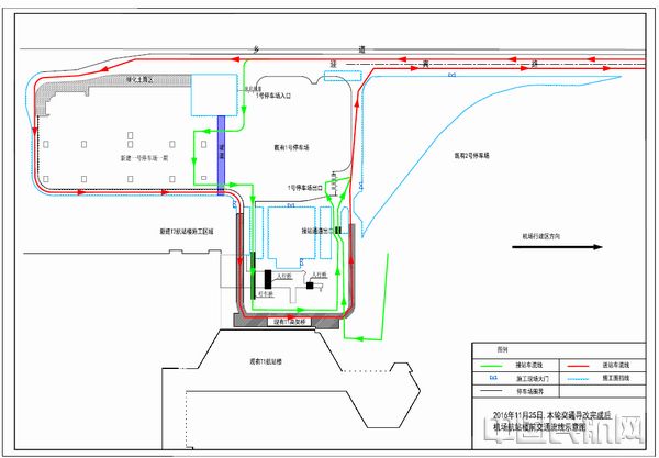
  送客线路调整为,从迎宾路来机场方向,在一号停车场入口前,继续前行约280米左转,然后继续前行180米左转,前行280米右转,再进入临时上引桥。调整后,哈尔滨机场将在主要部位布设路线指示标识,请司机按照指示标识行车(图中红色箭头方向)。

  出租车和接站车线路基本没有变化。出租车流线:从2号停车场旁边进入出租车通道;接站车流线1:迎宾路来程方向→1号停车场入口闸机→三分钟等待接站通道→1号停车场出口闸机,但三分钟等待接站通道线型将由原来的直线调整为折线,导改后机场将在主要部位布设路线指示标识,请司机师傅按照指示标识行车;接站车流线2:迎宾路来程方向→2号停车场入口闸机→三分钟等待接站通道→三分钟等待接站通道出口闸机→迎宾路回程方向。

  附图:调整后机场航站楼前交通流线示意图


责任编辑:张薇 000
推荐新闻:
首都机场商贸公司学雷锋志愿服务月活动...
首都机场安保公司开展青年文明志愿服务活动
湖北空管分局组织召开武汉天河机场改扩...
首都机场安保公司开展航班换季工作动员部署
首都机场安保公司开展安全作风专项提升行动
乌鲁木齐国际机场分公司安全检查总站开...
首都机场安保公司以正确政绩观筑牢国门...
民航湖南监管局联合湖南航空开展“拾光...
中国航油广东公司团委开展“弘扬雷锋精...
新疆机场集团伊犁伊宁国际机场春日砺技 ...
砺兵强本 陕西机场公安吹响春训“集结号”
苏南瑞丽航空保卫部推进换季空防安全保...
江西航空开展民航知识进校园活动
渤海租赁拟3亿元至5亿元回购公司股份,...
东航江西分公司举行劳模先进助企行暨女...
长龙航空承办新版《民用航空法》专题讲座
深航郑州基地:旅客万元现金遗落客舱 “...
南航新疆抓实案例学习教育 为空防安全能...
江西航空积极开展“国际消费者权益日”...
推动“智能+气象”有机融合 天津空管分...
返回首页
中国民航报社有限公司 版权所有 京ICP备05024158 京公网安备 11010502030065号 互联网新闻信息服务许可10120170026 网络视听许可证0113657

本网站所刊登的《中国民航报》及“中国民航网”各种新闻、信息和各种专题专栏资料, 均为中国民航报社有限公司版权所有,未经协议授权,禁止下载使用。
制作单位:中国民航网 办公电话:010-67355289 传真:010-67355289 通信地址:北京市朝阳区十里河2264信箱 邮政编码:100122
违法和不良信息举报电话:010-67355289 举报邮箱:news@caacnews.com.cn  中国互联网举报中心 常年法律顾问—北京市安理律师事务所